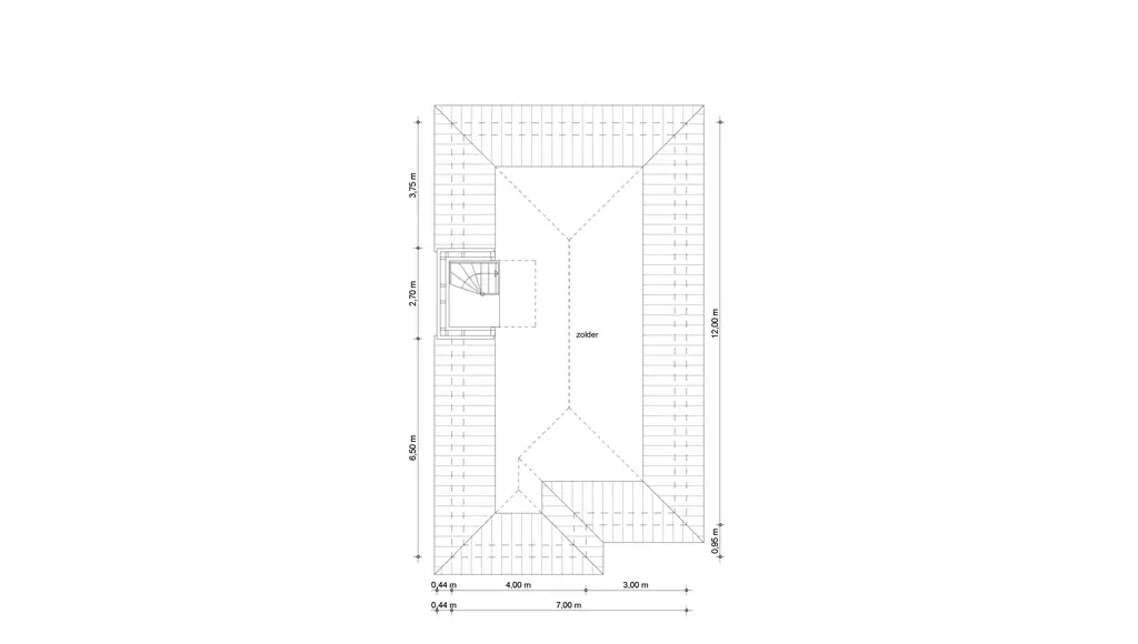
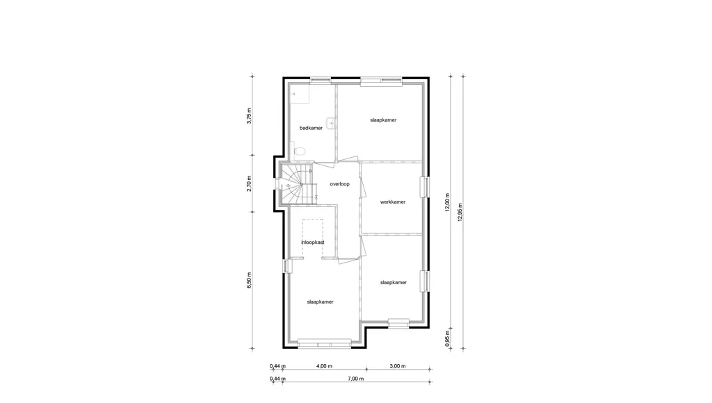
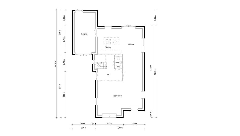
Modelwoningen

Bij Bouwbedrijf Kamphuis zijn we gespecialiseerd in het realiseren van woningen die volledig zijn afgestemd op de unieke wensen van onze klanten. Het bouwen van een huis begint bij een modelwoning, maar wij geloven dat iedere woning net zo individueel moet zijn als haar bewoners. Daarom kan elke modelwoning helemaal aangepast worden naar uw wensen. Bij ons is niets standaard en zijn er geen beperkingen; uw visie staat centraal.

Hieronder vind je een overzicht van al onze modelwoningen. Benieuwd naar de mogelijkheden? Klik op een woning om voorbeelden te bekijken van projecten die volledig zijn afgestemd op de wensen van onze klanten. Laat je inspireren door de eindeloze mogelijkheden en ontdek hoe wij jouw droomwoning kunnen realiseren.

Wilt u meer inspiratie voor uw nieuwe droomhuis? Vraag dan onze brochure aan of maak een afspraak in ons Bouwinspiratie Centrum. Alles wat er komt kijken bij het bouwen van een huis vindt u hier onder één dak.